Проект 52

35000

Цена (с НДС): 35000

Описание

caret-down
  • Высота нашего клеенново бруса 260мм (склеенный не только в толщину ну и в высоту). Это обеспечивает более монолитную конструкцию дома с меньшем количеством соеденений. 
  • В проекте и планировке дома возможны любые изменения. С удовольствием разработываем также и индивидуальные проекты.
  • Цена раздвижной витрины дополнительно 3600 (с НДС) - Рама 90мм, тройной стеклопакет, заводская покраска, наличники из обеех сторон.

В комплектацию включено

caret-down
  • Конструкция пола - импрегнированные под давлением фундаментные брусья, половые лаги. Шпунтовонаая  половая доска 28мм, плинтуса. Конструкция подготовленна для укладки материалов теплоизоляции;
  • Конструкция терасы (если предусмотрена в проекте дома) - под довлением импрегнированные брусья, терасовая доска 30мм, перила;
  • Конструкция перекрытия (если в проекте дома предусмотрено два этажа) - балки перекрытия, половые лаги пола второво этажа, шпунтовонная половая доска 28мм, вагонная доска отделки потолка первово этажа, плинтуса;
  • Наружные и внутренние стены из профилированново клеенново бруса с крестообразными соеденениями или соеденениями городсково типа. Возможны каркасные перегородки;
  • Конструкция крыши - балки, брусья, стропила, ветровие доски, вагонная доска кровли, вагонная доска потолка, плинтуса. Крыша подготовлена для укладки покрытия кровли и для укладки материала теполоизоляции;
  • Деревянные окна и витрины со стеклопакетами. Декоротивные  деревянные наличники с обеех сторон; 
  • Деревянные двери со стеклопакетами или без стекла. Декоротивные  деревянные наличники с обеех сторон; 
  • Деревянные внутренние двери со стеклопакетами или без стекла. Декоротивные  деревянные наличники с обеех сторон;
  • Согласно  с проектом дома необходимые вертикальные опоры и механизмы регулировки опор;
  • Лестница с перилами согласно проекту;
  • Декоротивная фрезеровка концов стропил, колонн, наличников, перил и других деталей (дизайн по договоренности);
  • Промышленная фрезеровка каналов электропроводки и дырок в стенах для установки розеток и выключателей;
  • Проект производства и монтажа дома, чертежи для соглосования строительства в стройуправе (площадь застройки до 60м²) или для разработки техническово проекта (площадь застройки выше 60м²).

Техническая информация

caret-down
Толщина стен (мм):
90мм
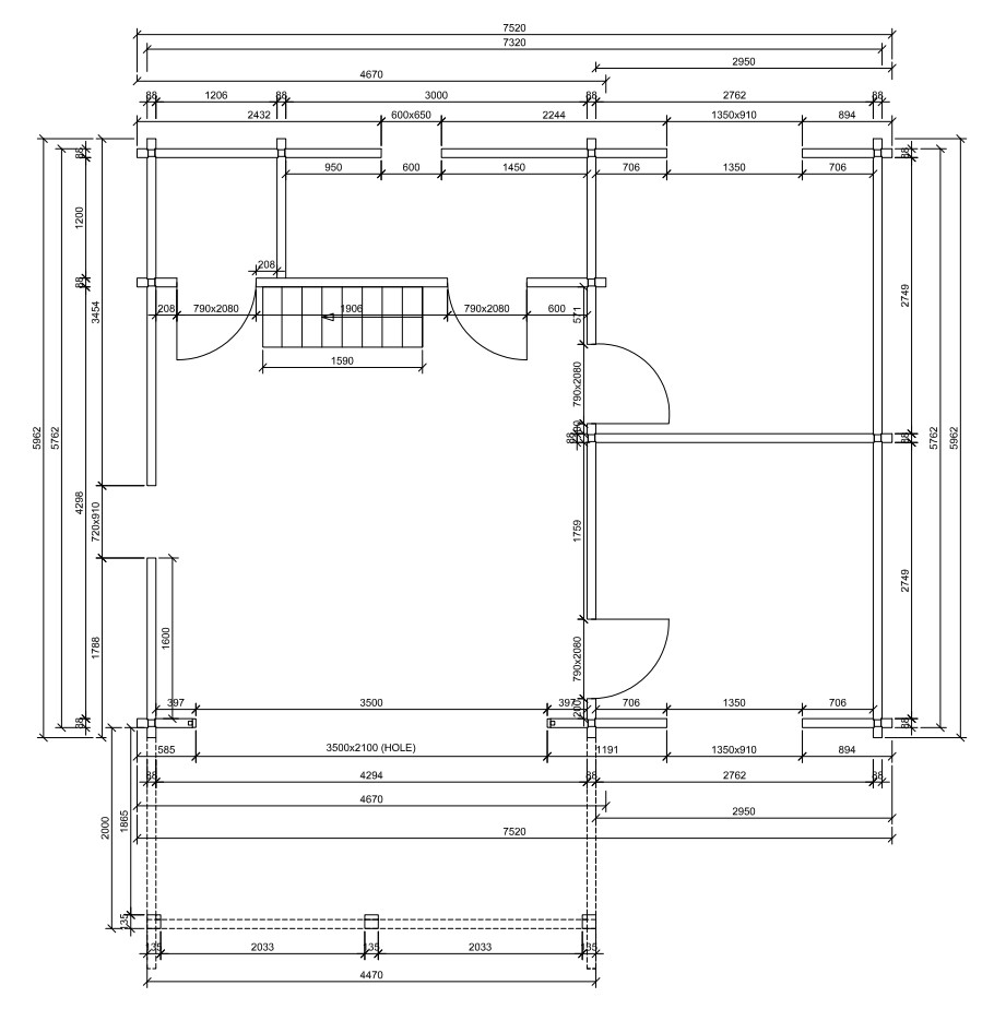
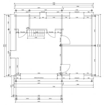
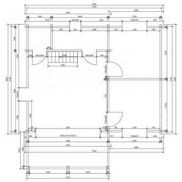
Внутренняя площадь (м²):
52
Число этажей:
2
Количество помещений:
Больше чем три
Площадь застроики (м²):
51,12
Площадь террасы (м²):
8,94


Дополнительная комплектация
caret-down
  • За дополнительную плату предлогаем професиональную покраску и лакировку окон и дверей на заводе;
  • За дополнительную плату предлогаем строительство фундамента, монтаж дома, укладку материалов теплоизоляции, укладку кровли, покраску дома, разводку коммуникационных сетей и другие работы по соглосованию;
  • Возможно утепление стен - с наружи или из внутри (деревянный каркас наполненный каменной или эко ватой и зошит досками имитирующими брус стены или другими материалами).
Дополнительные возможности
Монтаж, доставка
За дополнительную плату обеспечиваем доставку нашей продукции, монтажные работы, а также проведение других строительных работ по соглашению (фундамент, коммуникации, покраска, утепление и другие).
Индивидуальные проекты
Без сложностей производим дома индивидуальных проектов согласно Вашем эскизам, чертежам, идеям.
Получение разрешения на строительство
За небольшую плату обеспечиваем получение разрешения на строительство домам 1.группы, а также предлогаем услиги проектирования домов 2.группы.
Получить информацию
Отправь это сообщение Вам будет подготовлено предложение по продукту: Проект 52

Проект 52

35000