Hanza living 57

17900
19950 €

Cena (ar PVN): 17900
19950 €

ATLAIDE
ATLAIDE
ATLAIDE
ATLAIDE
ATLAIDE
ATLAIDE
ATLAIDE
ATLAIDE
ATLAIDE
ATLAIDE
ATLAIDE
ATLAIDE
ATLAIDE
ATLAIDE
ATLAIDE
ATLAIDE
ATLAIDE
ATLAIDE
ATLAIDE
ATLAIDE
ATLAIDE

Apraksts

caret-down
  • Iespējama pārplānošana pēc Jūsu vēlmēm;
  • Izgatavojam individuālus projektus bez papildus samaksas;
  • Par papildus samaksu iespējamas biezākas sienas (68mm, 90mm, 135mm u.c.);
  • Par papildus samaksu iespējama grīdas, jumta un sienu siltināšana.

Komplektācijā iekļauts

caret-down
  • Mājas sienas no 44mm frēzētām brusām (egle);
  • Impregnētas pamatu brusas;
  • Jumts no 19 mm spundētiem dēļiem, vēja dēļi;
  • Grīda no 19 mm spundētiem dēļiem, grīdlīstes;
  • Koka rāmju logi un durvis ar stikla paketēm;
  • Logu un durvju blīvgumijas;
  • Logi atverami divās pozīcijās;
  • Logi ar metāla ārējo palodzi;
  • Pieslienamas koka trepes uz mansarda stāvu;
  • Durvis un logi ar pilnu furnitūras komplektu;
  • Montāžas instrukcija.

Tehniskā informācija

caret-down
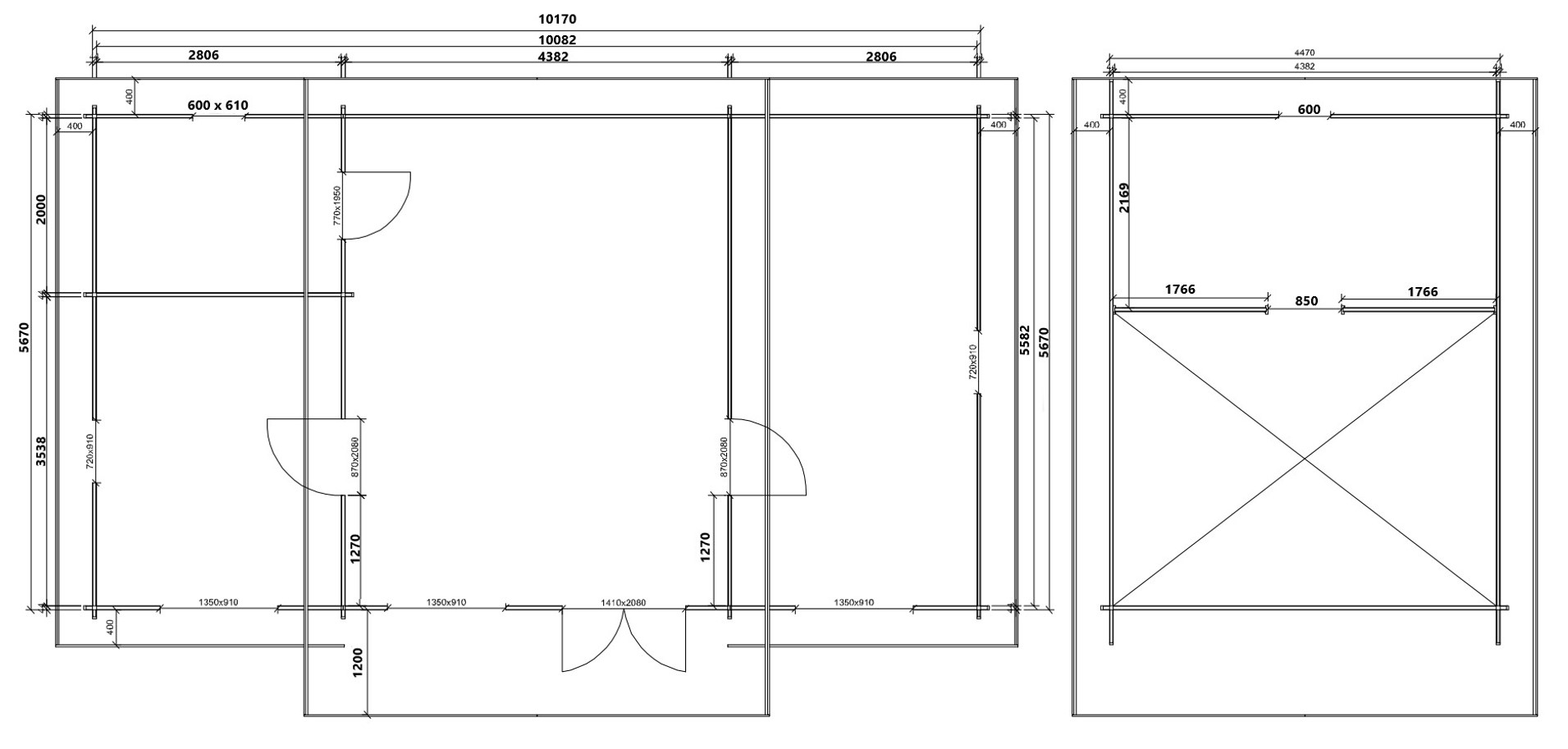
Sienu biezums (mm):
44mm
Iekšējā platība (m²):
55.67
Stāvu skaits:
1.5
Jumta forma:
Divslīpju
Telpu skaits:
Vairāk kā trīs
Iekšējais izmērs (m):
10.082 x 5.582 + mansards 4.382 x 2.17
Ārējais izmērs (m):
10.17 x 5.67
Apbūves platība (m²):
57.66
Jumta platība (m²):
83.20
Jumta pārkare priekšā (m):
1.20
Zemākās sienas augstums (m):
2.14
Kores augstums (m):
3.96
Logu skaits (gab.):
3 / 2 / 2
Loga izmērs (m):
1.35 x 0.91 / 0.72 x 0.91 / 0.60 x 0.61
Ārdurvju izmērs (m):
1.41 x 2.08
Iekšdurvju izmērs (m):
0.87 x 2.08


Papildus iespējas
Montāža, piegāde
Par papildus samaksu nodrošinām mūsu produkcijas piegādi, montāžu, kā arī citu papildus darbu veikšanu saskaņā ar vienošanos (pamati, komunikāciju tīkli, siltināšana, krāsošana u.c.)
Individuāli projekti
Bez sarežģījumiem izgatavojam arī individuālu projektu mājas saskaņā ar Jūsu skicēm, rasējumiem, idejām!
Saskaņošana būvvaldē
Par nelielu papildus samaksu nodrošinām mūsu māju projektu vienkāršoto saskaņošanu būvvaldēs 1.grupas ēkām, kā arī veicam pilna cikla projektēšanas darbus 2.grupas ēkām
Saņemt informāciju
Nosūtot šo ziņu, jums tiks sagatavots piedāvājums par produktu: Hanza living 57

Iesakām aprīkot savu vasarnīcu ar mūsu mēbelēm:

Hanza living 57

17900
19950 €