Spilve

7990
8800 €

Cena (ar PVN): 7990
8800 €

JAUNUMS
ATLAIDE
JAUNUMS
ATLAIDE
JAUNUMS
ATLAIDE
JAUNUMS
ATLAIDE
JAUNUMS
ATLAIDE
JAUNUMS
ATLAIDE
JAUNUMS
ATLAIDE
JAUNUMS
ATLAIDE
JAUNUMS
ATLAIDE
JAUNUMS
ATLAIDE

Apraksts

caret-down
  • Iespējama pārplānošana pēc Jūsu vēlmēm;
  • Izgatavojam individuālus projektus bez papildus samaksas;
  • Par papildus samaksu iespējamas biezākas sienas (68mm, 90mm, 135mm u.c.);
  • Par papildus samaksu iespējama grīdas, jumta un sienu siltināšana.



 


Komplektācijā iekļauts

caret-down
  • Mājas sienas no 44mm frēzētām brusām (egle);
  • Impregnētas pamatu brusas;
  • Jumts no 19 mm spundētiem dēļiem, vēja dēļi;
  • Grīda no 28 mm spundētiem dēļiem, grīdlīstes;
  • Impregnēti terases dēļi 28mm biezi;
  • Koka rāmju logi un durvis ar stikla paketēm;
  • Logu un durvju blīvgumijas;
  • Logi atverami divās pozīcijās;
  • Logi ar metāla ārējo palodzi;
  • Durvis un logi ar pilnu furnitūras komplektu;
  • Montāžas instrukcija.

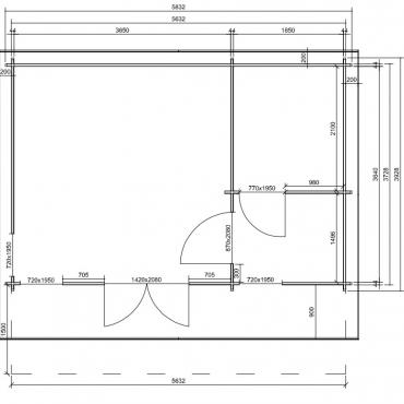
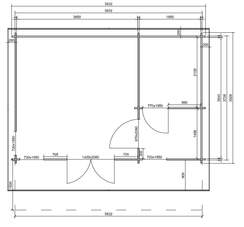
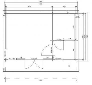
Tehniskā informācija

caret-down
Sienu biezums (mm):
44mm
Iekšējā platība (m²):
19.95
Stāvu skaits:
1
Jumta forma:
Vienslīpes
Telpu skaits:
Trīs
Iekšējais izmērs (m):
5.544 x 3.64
Ārējais izmērs (m):
5.632 x 3.728 + terase 1.50 x 5.632
Apbūves platība (m²):
29.44
Jumta platība (m²):
29.20
Jumta pārkare priekšā (m):
0.90
Zemākās sienas augstums (m):
2.145
Kores augstums (m):
2.405
Logu skaits (gab.):
3
Loga izmērs (m):
0.72 x 1.95
Ārdurvju izmērs (m):
1.42 x 2.08
Iekšdurvju izmērs (m):
0.87 x 2.08
Terases platība (m²):
1.50 x 5.63


Papildus iespējas
Montāža, piegāde
Par papildus samaksu nodrošinām mūsu produkcijas piegādi, montāžu, kā arī citu papildus darbu veikšanu saskaņā ar vienošanos (pamati, komunikāciju tīkli, siltināšana, krāsošana u.c.)
Individuāli projekti
Bez sarežģījumiem izgatavojam arī individuālu projektu mājas saskaņā ar Jūsu skicēm, rasējumiem, idejām!
Saskaņošana būvvaldē
Par nelielu papildus samaksu nodrošinām mūsu māju projektu vienkāršoto saskaņošanu būvvaldēs 1.grupas ēkām, kā arī veicam pilna cikla projektēšanas darbus 2.grupas ēkām
Saņemt informāciju
Nosūtot šo ziņu, jums tiks sagatavots piedāvājums par produktu: Spilve

Rekomendējam kopā ar pirti iegādāties arī šādus produktus:

Spilve

7990
8800 €