Jelgava
14700 €
15650 €
15650 €
Цена (с НДС):
14700 €
15650 €
15650 €
Описание
- Возможна перепланировка в соответствии с Вашими пожеланиями;
- Изготавливаем индивидульные проекты без дополнительной платы;
- За дополнительную плату возможны более толстые стены (68мм, 90мм, 135мм и другие);
- За дополнительную плату возможно утепление пола, крыши и стен.
В комплектацию включено
- Стены дома из профилированного бруса 44 мм (ель);
- Пропитанные фундаментные брусья;
- Доски крыши толщиной 19 мм, ветровые доски;
- Доски пола толщиной 19 мм, плинтусы;
- Пропитанная террасная доска толщиной 28 мм;
- Окна и двери со стеклопакетами в деревянных рамах;
- Уплотнители окон и дверей;
- Окна с металлическими наружными подоконниками;
- Oкна открываются в двух позициях;
- Окна и двери с полным комплектом фурнитуры;
- Инструкция по сборке.
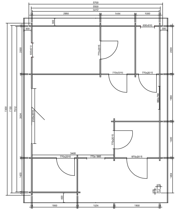
Техническая информация
Толщина стен (мм):
44мм
Внутренняя площадь (м²):
32.63
Число этажей:
1
Форма крыши:
Двухскатная
Количество помещений:
Больше чем три
Внутренний размер (м):
5.412 x 7.012
Внешний размер (м):
7.10 x 5.50
Площадь застроики (м²):
39.05
Площадь крыши (м²):
49.61
Передний вынос крыши (м):
0.40
Высота нижней стены (м):
2.21
Высота в коньке (м):
2.99
Количество окон (шт.):
5
Размер окна (м):
0.77 x 1.88 / 0.98 x 0.78 / 2.33 x 2.015 / 0.60 x 0.61
Размер внешней двери (м):
0.87 x 2.015
Размер внутренней двери (м):
0.77 x 2.015
Площадь террасы (м²):
5.14
Дополнительные файлы
Дополнительная комплектация
Дополнительные возможности
Монтаж, доставка
За дополнительную плату обеспечиваем доставку нашей продукции, монтажные работы, а также проведение других строительных работ по соглашению (фундамент, коммуникации, покраска, утепление и другие).
Индивидуальные проекты
Без сложностей производим дома индивидуальных проектов согласно Вашем эскизам, чертежам, идеям.
Получение разрешения на строительство
За небольшую плату обеспечиваем получение разрешения на строительство домам 1.группы, а также предлогаем услиги проектирования домов 2.группы.
Получить информацию
Отправь это сообщение Вам будет подготовлено предложение по продукту: Jelgava